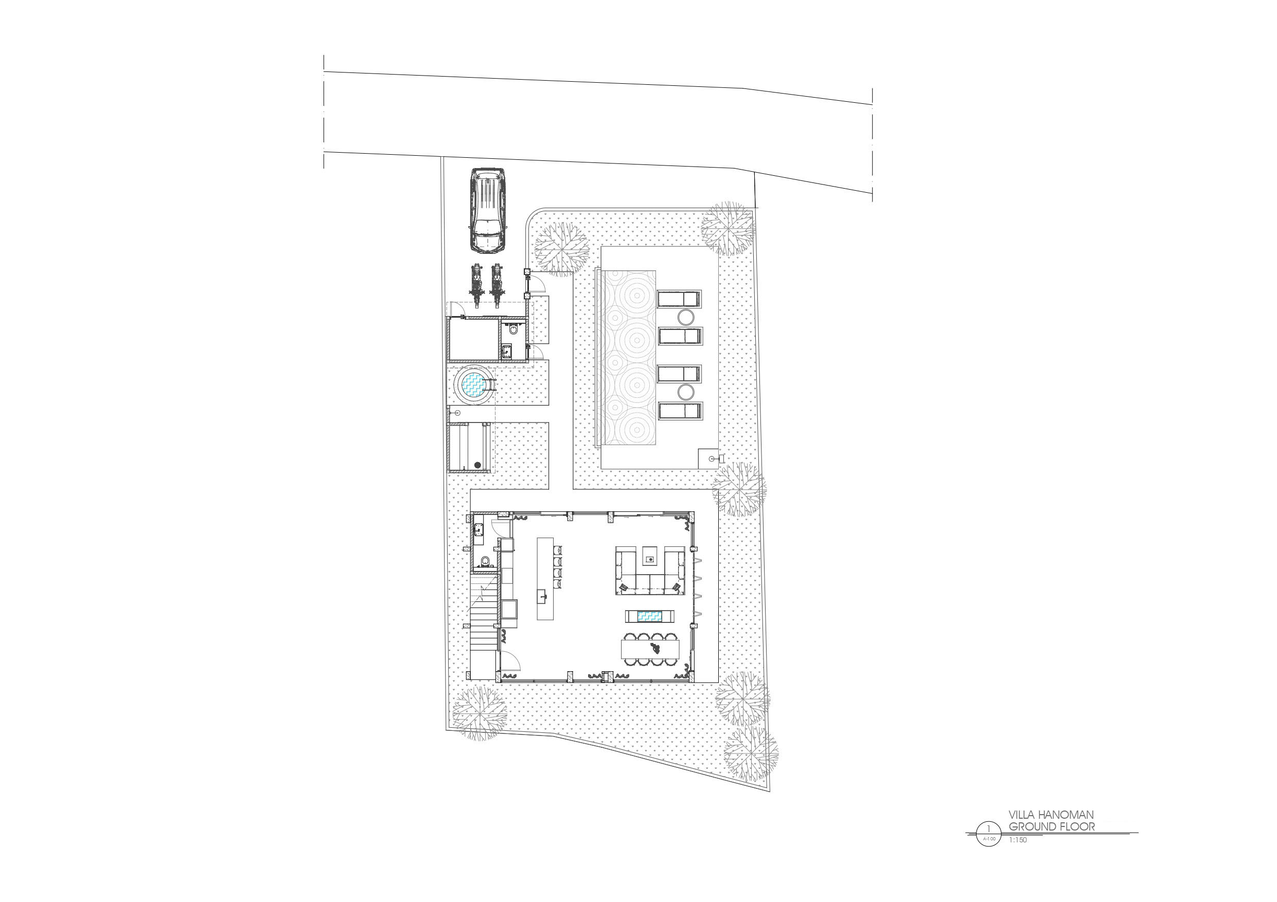
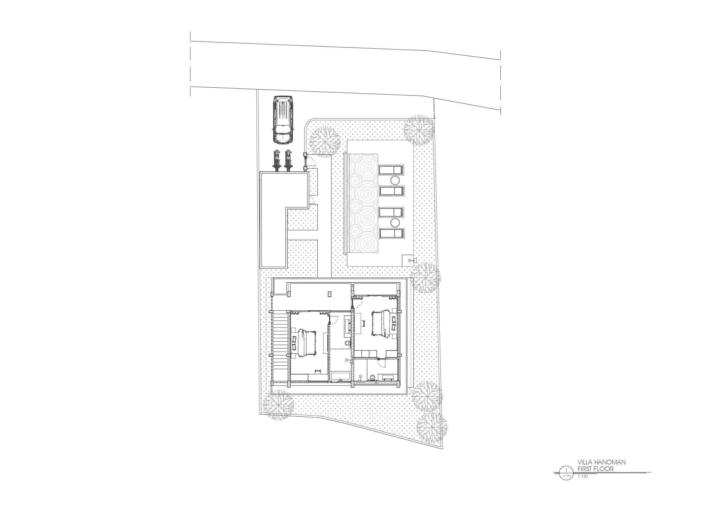
Villa Hanoman takes a smart architectural approach to maximize volume and flow. By positioning the two bedrooms on the upper level, the design dedicates the entire ground floor to an expansive, open-plan living space.
This layout creates a vast social sanctuary on the ground level that opens up completely to the outdoors. The interior living area transitions effortlessly onto a substantial sun deck and a large swimming pool, making the home feel incredibly spacious and bright.
To complete the experience, Villa Hanoman features a dedicated wellness zone equipped with a sauna and cold plunge, offering a private spa experience integrated directly into the design.
.jpeg)
.jpeg)
.jpeg)
.jpeg)
.jpeg)
.jpeg)
.jpeg)
.jpeg)
.jpeg)